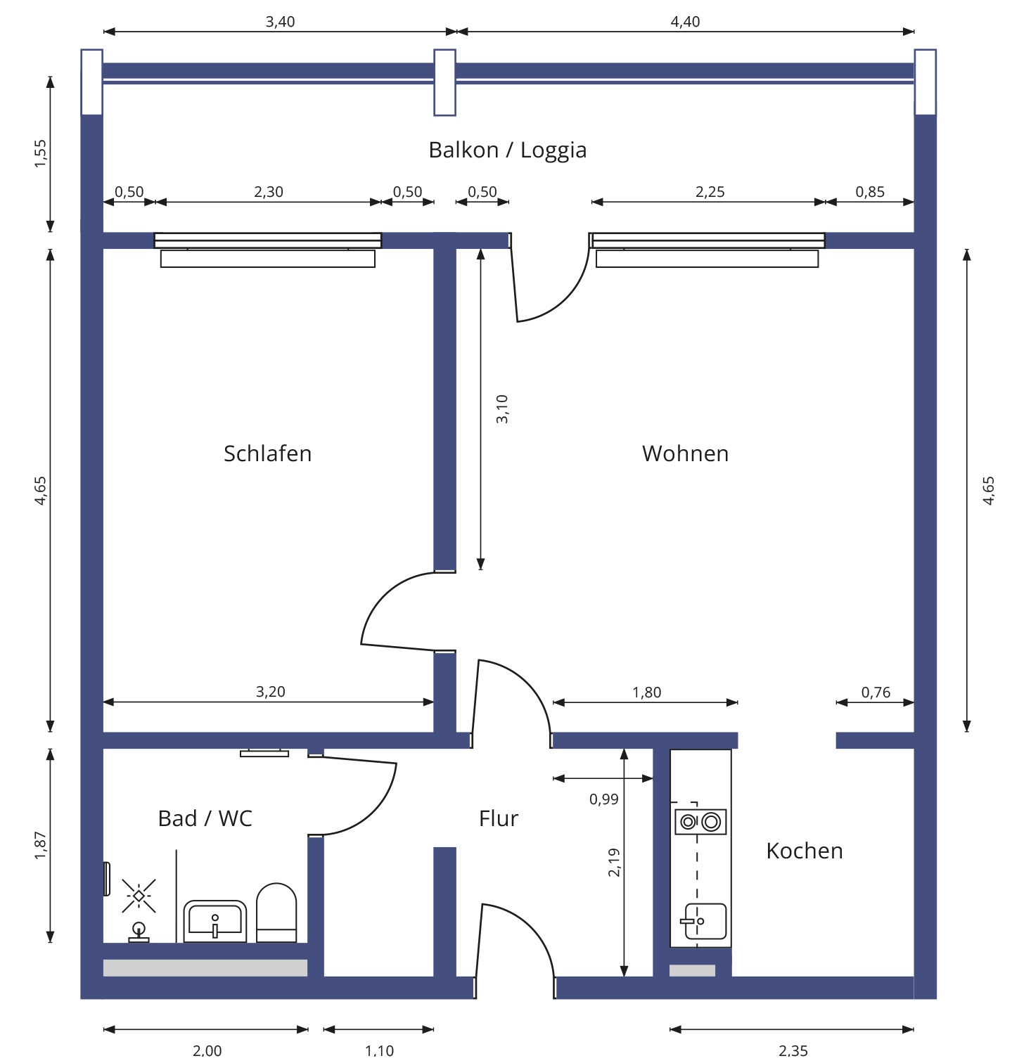
Wohnung Typ E

Wohnraum 20,46 m²
Schlafraum 14,88 m²
Küche 4,89 m²
Flur 4,27 m²
Abstellnische 2,41 m²
Bad/WC 3,74 m²
Balkonloggia 12,04 m²
Gesamtfläche 62,69 m2

Wohnfläche DIN/283 53,60 m²
Raumhöhe 2,50 m

Grundriss-PDF laden