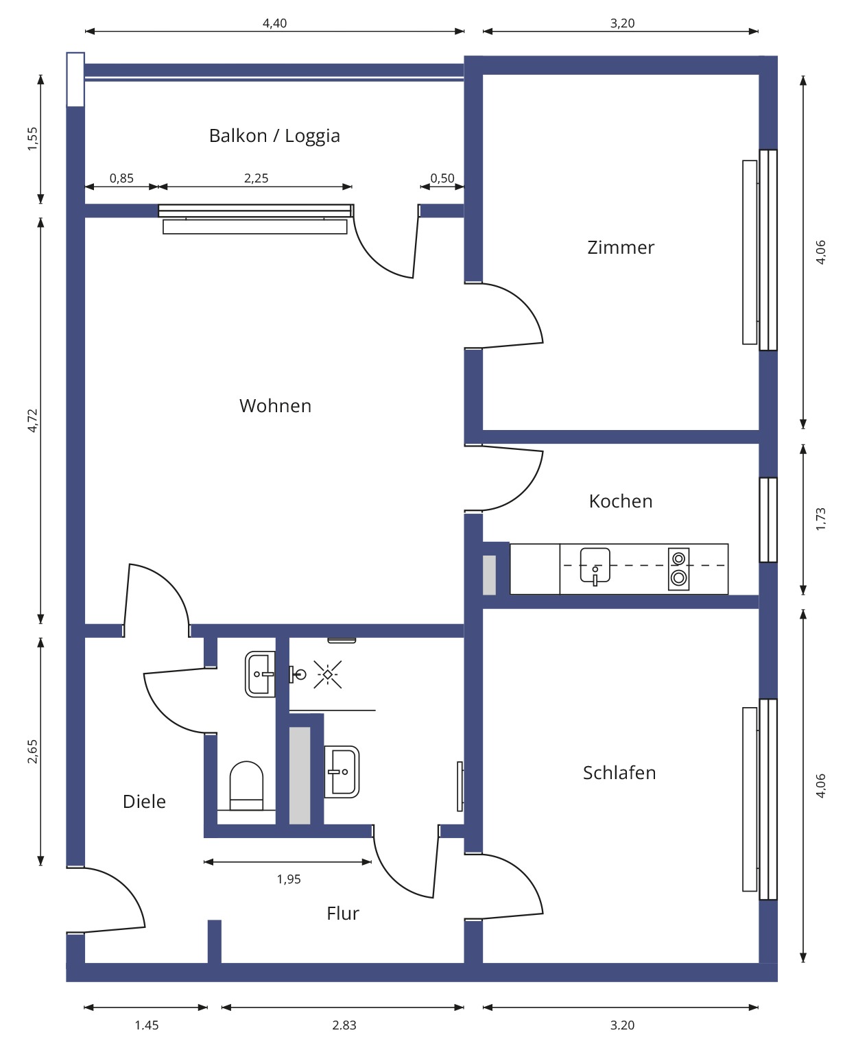
Wohnung Typ F

Wohnraum 20,76 m²
Schlafraum 12,99 m²
Zimmer 12,99 m²
Küche 5,35 m²
Dielen 10,29 m²
Bad/WC 4,74 m²
Balkonloggia 6,67 m²
Gesamtfläche 73,79 m²

Wohnfläche DIN/283 68,79 m²
Raumhöhe 2,50 m

Grundriss-PDF laden